浙江聚英環??萍加邢薰緸槟饕峁?a href="">一體式濾筒除塵器,廚房油煙凈化裝置,焊接除塵設備,焊接煙塵凈化設備等相關的展示和信息更新,歡迎您的收藏。

產品簡介
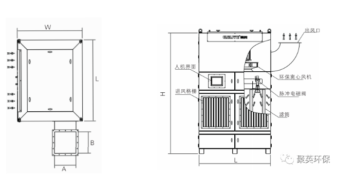
產品原理

產品優勢
1)一體柜式結構設計,空間占用小,吊裝搬運和安裝就位快捷,檢修維護方便;
2)直接源頭收集粉塵,側吸式風口,無需連接風管和吸風罩;
3)提供風機變頻調速功能、入口迷宮式分離格柵、PLC編程控制等多種選配功能;
4)設備可根據要求制作成防爆型,增加防爆電機、防爆脈沖電磁閥、防爆電控箱、泄爆膜等防爆配置;
5)環保專用除塵離心風機,性能曲線穩定,效率高,葉輪經動、靜平衡調整,噪聲和振動較低;
設備參數

一體式濾筒除塵器怎么樣?廚房油煙凈化裝置哪家便宜?焊接除塵設備哪家好?浙江聚英環??萍加邢薰局饕峁┮惑w式濾筒除塵器,廚房油煙凈化裝置,焊接除塵設備,焊接煙塵凈化設備
Copyright©www.njjxfs.cn ( 點擊復制 )浙江聚英環??萍加邢薰?nbsp; 備案號:浙ICP備15038850號-1 浙公網安備:33060402000164